التخطي إلى المحتوى الرئيسي
بحث هذه المدونة الإلكترونية
Creating Zone in AutoCAD MEP

تعلمنا كيف نقسم الطابق إلى حيزات إذا أردنا استخدام برنامج أوتوكاد ميب في الحسابات
و الآن نتعلم كيف نضيف الحيزات المتشابهة إلى
Zone
سنقوم بالعمل على ملف العمل
2D Project
يتم االضغط عليه مرتين لتنشيطه وفتحه

ثم الضغط على زر
Close
للعودة لواجهة المستخدم للبرنامج
لاحظ تحميل ملفات المشروع في لوحة مدير المشروع
Project Navigator
سيتم العمل على الطابق الثانى

سأقوم بإخفاء المحاور والواجهات الأربعة
وأيضا العواميد لإيضاح تخطيط الطابق
سأقوم بفتح الرسم المعمارى من نفس النافذة
باختيارها عن طريق الضغط عليها بالزر الأيسر للفارة

و الآن نضم الحيزات المتشابهة في منطقة واحدة
عن طريق الذهاب إلى لوحة الأدوات
ثم الضغط على الزر الأيمن للفارة
لنختار اللوحة الخاصة بأدوات المعماري

ثم نختار التبويب
Design
و نختار منها الأداة
Zone

سأقوم بضم جميع حيزات القسم الأوسط والأيسر في منطقة واحدة
ولعمل ذلك سأقوم بالذهاب لخارج مخطط الطابق على اليسار
ثم الضغط على الزر الأيسر من الفارة
ثم زر الخروج
Esc

تم عمل أول منطقة
Zone
والان سأقوم باضافة الحيزات المتشابهة للمنطقة الجديدة
باختيارها مرة أخرى ثم الضغط على علامة الموجب

لاحظ ظهور الرسالة بنافذة الأوامر لبدء إضافة الحيزات
يتم الذهاب إلى الحيزات
والضغط على الزر الأيسر من الفارة ليتم اضافتها
وبعدها الضغط على مفتاح الإدخال ليتم تنفيذ الأمر
حيث بعدها يقوم برنامج أوتوكاد ميب
برسم خط يربط بين الحيز المختار والمنطقة

يتم تكرار الخطوات لإضافة الحيزات الاخرى
وخلال تنشيط اختيار المنطقة
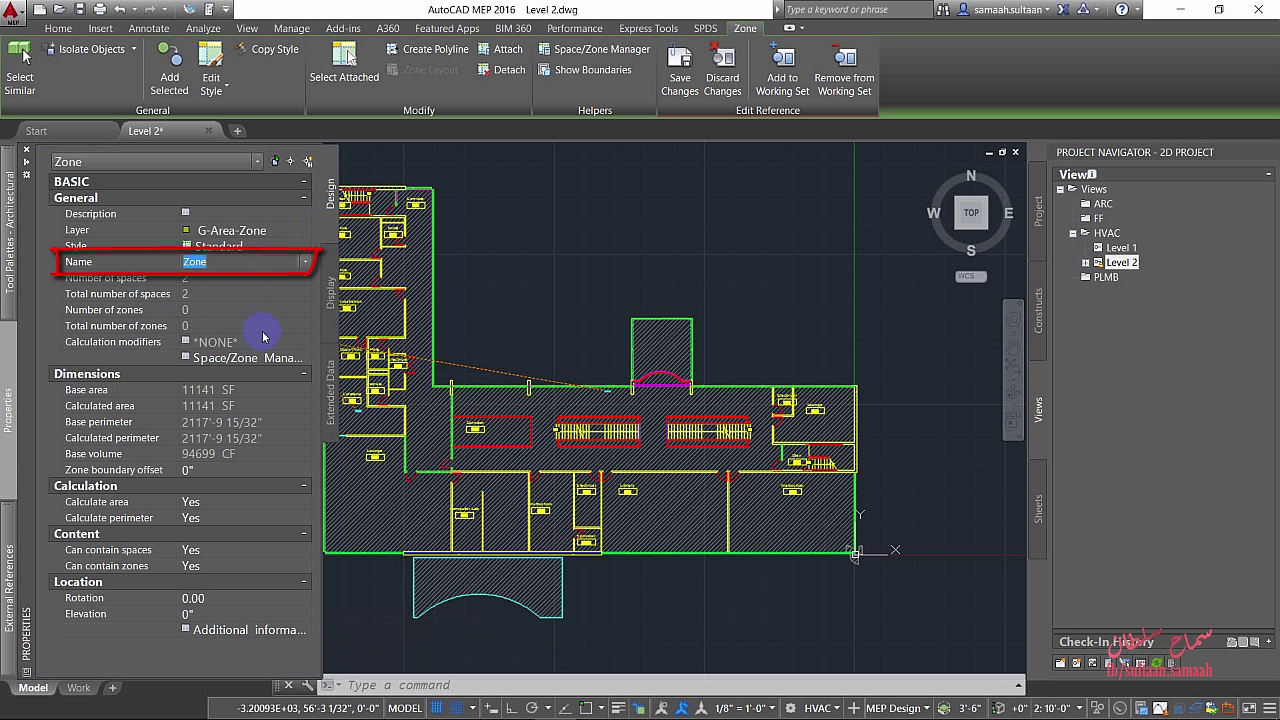
يتم ارفاق اسم مناسب له عن طريق لوحة الخصائص
ونستطيع فحص المنطقة بما تشمله من حيزات باستخدام الأداة
Space/Zone Manager
الموجودة بشريط الأدوات بالتبويب
Zone
حيث يقوم البرنامج بفتح نافذة تظهر فيها
كل المناطق و الحيزات و المكونات الخاصة بكل
Space
مثل: الاسم و النوع و نوع الاظهار و المساحة

نتعرف الآن على طريقة أخرى لاضافة الحيزات للمنطقة ما
عن طريق عمل Zone باستخدام الطريقة العادية
ثم اختيارها وبعدها نقوم باستدعاء
نافذة الاختصارات بالضغط على المنطقة
تزامنا مع الضغط على الزر الأيمن للفارة
وبعدها نختار
Attach Spaces / Zones
وبعدها أختر الحيز ثم أضغط على مفتاح الإدخال
Enter
ليتم اضافتها
ويتم تكرار الخطوات السابقة مع الحيزات الأخرى المراد إضافتها
تعليقات
إرسال تعليق